5 locali in vendita

Livorno, Via Cestoni - San Marco
€ 260.000
5 locali 5 locali
110 Mq 110 Mq
1 bagno 1 bagno

5 locali in vendita

Livorno, Via Cestoni - San Marco

Descrizione annuncio

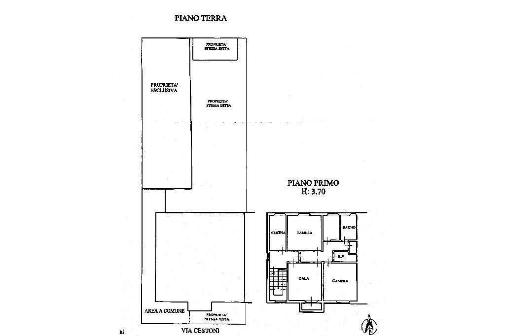
Livorno – Via Cestoni – 5 locali

(Soggiorno, cucina abitabile,3 camere, bagno, ripostiglio, balcone, giardino).

Via cestoni, proponiamo in vendita porzione di bifamiliare in ottime condizioni con ingresso indipendente.

L’immobile è così composto : Soggiorno, cucina abitabile, 3 camere, bagno c/finestra e box doccia, ripostiglio, zona lavanderia e balcone.

Completa la soluzione il giardino privato di 100 mq dove troviamo un fabbricato in legno adibito a ricovero attrezzi e la soffitta di 8mq.

L’appartamento è abitabile fin da subito.

Fissa un appuntamento per vedere l'immobile e chiama 05861587260

oppure invia una mail a licn9

Mostra tutto

Nelle vicinanze

Trasporto pubblico Trasporto pubblico
stazione di Livorno Centrale
stazione di Livorno Centrale
1,7 Km
Via Cestoni Via Stenone
Via Cestoni Via Stenone
90 m
Via Cestoni Via Mastacchi
Via Cestoni Via Mastacchi
100 m
Calata Carrara
1,5 Km
Stazione Marittima
1,6 Km
Ricariche auto elettriche Ricariche auto elettriche
Lidl Ippolito Nievo Livorno
910 m
Eneldrive Comune di Livorno
1,5 Km
Scuole Scuole
Campana
120 m
Enrico Fermi
200 m
G. Micheli
510 m
Luigi Orlando
610 m
Galileo Galilei
720 m
Farmacia Farmacia
Farmacia Picchioni
290 m
Torretta
490 m
Farmacia Comunale 3
620 m
Farmacia Comunale no. 6 - Corea
640 m
San Matteo
730 m
Ospedali Ospedali
Spedali Riuniti
1,5 Km
Casa di Cura "Villa Tirrena"
2,9 Km
Supermercati Supermercati
Fresco market
270 m
Lidl
370 m
Centro Spesa Sidis
380 m
Penny Market
440 m
Conad
460 m
Negozi Negozi
Negozi
510 m
Il Vecchio Mulino
760 m
Panificio Giari
790 m
Panetteria da Simonetta
840 m
officina del pane
860 m
Bar Bar
Bar
580 m
Appendaun
750 m
Bar Pelletti
1,1 Km
Ex cinema Aurora
1,2 Km
Le botteghe
1,2 Km
Ristoranti Ristoranti
La Corte del Focho
390 m
La cambusa livornese
410 m
Kasita
500 m
Sapori di Napoli
580 m
Il saraceno
680 m
Mostra tutto

Caratteristiche

Rif.:
60992519
Piano:
1 di 1 (Piano basso)
Balconi:
1
Camere da letto:
2
Arredamento:
Assente
Condizionamento:
Assente
Mostra tutto
Prezzo Prezzo
€ 260.000
Rata mutuo Rata mutuo
€ 1.227 / mese
Proponi il tuo prezzoProponi il tuo prezzo

Classe Energetica

G
G
G
G
G
G
G
G
G
EP globale non rinnovabile:
180.00 kW h/m² anno
EP globale rinnovabile:
18.00 kW h/m² anno
EP invernale del fabbricato:
EP estiva del fabbricato:
Anno di costruzione:
1967
Riscaldamento:
Autonomo
Tipo impianto:
A radiatori
Tipo alimentazione:
Metano

Ti interessa visionare l'immobile?

Fissa un appuntamento  Fissa un appuntamento

Richiedi informazioni

Clicca su Leggi per aprire l'informativa
* Questi campi sono obbligatori

Calcola il tuo mutuo

Semplice e senza impegno
Anticipo

( % )
Mutuo

( % )

pochi semplici passi

inserisci i tuoi dati
Questionario completato
Grazie per aver richiesto un appuntamento senza impegno con un nostro Consulente del Credito e Assicurativo.

Hai inserito correttamente tutti i dati necessari e a breve riceverai una e-mail con un link da convalidare per inviare i tuoi dati.
Affiliato
Studio San Marco Srl
P.le XI Maggio, 9/B 57123 Livorno (LI)

Il nostro staff


  • Diamante Capone
    Affiliato

  • Leonardo Finocchi
    Affiliato

  • Leonardo Guerrini
    Affiliato

  • Francesco Pilagatti
    Collaboratore

  • Chiara Puncioni
    Coordinatrice

  • Lorenzo Viola
    Collaboratore
P.le XI Maggio, 9/B 57123 Livorno (LI)
Zona: Livorno-San Marco-Garibaldi-Zola
Mostra su mappa
Affiliato
Studio San Marco Srl
P.le XI Maggio, 9/B 57123 Livorno (LI)

2025 Tecnocasa Franchising S.p.A. - P. IVA 08365160152 - Via Monte Bianco 60/A 20089 Rozzano (MI). Ogni agenzia ha un proprio titolare ed è autonoma. Privacy policy | Policy utilizzo | Cookie policy